
1 Wando Grove,
St Kilda East, VIC 3183
Other
Detailed listing
Key property information
Land area
Car spaces
Property extent
Tenure type
Sold on
Gary Peer & Associates - Caulfield North
348 Orrong RoadCAULFIELD NORTH, VIC 3161

1 Wando Grove
St Kilda East, VIC 3183
Detailed listing
Map of 1 Wando Grove
Blue-chip investment in a prime location
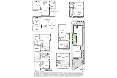
Set on an expansive 1,286m2* allotment, zoned General Residential (GRZ) with no Heritage Overlay, this substantial multi-residential property presents an exceptional opportunity for investors, developers, or land bankers seeking strong returns & future potential.
On one Title, the property comprises two front townhouses & a separate rear apartment block, currently generating multiple income streams while offering excellent scope for refurbishment, redevelopment or strata subdivision (STCA).
Current gross rental return of $250,260 (approx.) per annum.
Front Dwelling (c.1930s) – Beautiful period residence now converted into two spacious double storey townhouses:
Townhouse 1: Two-level layout featuring two bedrooms (with built-in robes), large entry hall, central bathroom, WC, separate laundry with toilet, living room with decorative fireplace, kitchen/meals & private courtyard.
Townhouse 2: Flexible two-level layout featuring an open plan kitchen/meals/living, lounge, five bedrooms (with built-in robes), the master bedroom with walk-in robe & ensuite, three bathrooms, laundry & ducted heating.
Rear Building (c.1950s) – Two-level block comprising:
6 x One-bedroom apartments
4 x Studio apartments
Many of the apartments have been updated & feature stone or laminate bench tops, modern kitchen cabinetry, upright gas stoves & either carpeted or polished timber floors.
Additional Features include established garden surrounds, a brick-paved driveway & front parking area accommodating up to nine vehicles & a rear brick storage garage.
Superbly positioned close to Alma Village & shops, (including Woolworths Metro) & moments from buses & Dandenong Road trams for easy CBD access. The property enjoys proximity to Carlisle Street cafés, local schools & parklands—making it an attractive choice for tenants & future redevelopment alike.
*Approximate Title Dimensions.
On one Title, the property comprises two front townhouses & a separate rear apartment block, currently generating multiple income streams while offering excellent scope for refurbishment, redevelopment or strata subdivision (STCA).
Current gross rental return of $250,260 (approx.) per annum.
Front Dwelling (c.1930s) – Beautiful period residence now converted into two spacious double storey townhouses:
Townhouse 1: Two-level layout featuring two bedrooms (with built-in robes), large entry hall, central bathroom, WC, separate laundry with toilet, living room with decorative fireplace, kitchen/meals & private courtyard.
Townhouse 2: Flexible two-level layout featuring an open plan kitchen/meals/living, lounge, five bedrooms (with built-in robes), the master bedroom with walk-in robe & ensuite, three bathrooms, laundry & ducted heating.
Rear Building (c.1950s) – Two-level block comprising:
6 x One-bedroom apartments
4 x Studio apartments
Many of the apartments have been updated & feature stone or laminate bench tops, modern kitchen cabinetry, upright gas stoves & either carpeted or polished timber floors.
Additional Features include established garden surrounds, a brick-paved driveway & front parking area accommodating up to nine vehicles & a rear brick storage garage.
Superbly positioned close to Alma Village & shops, (including Woolworths Metro) & moments from buses & Dandenong Road trams for easy CBD access. The property enjoys proximity to Carlisle Street cafés, local schools & parklands—making it an attractive choice for tenants & future redevelopment alike.
*Approximate Title Dimensions.
St Kilda East, 3183 demographic data
The median household income for St Kilda East is $2,020, 6% higher than Greater Melbourne's household income of $1,901. St Kilda East has a younger age profile compared to the rest of Greater Melbourne (median age 34 vs 37). Property ownership data shows 57% of property owners in St Kilda East have a mortgage.
12,571
Population
$2,020 per week
Median household income
34 years
Median age
Owners
Most residents
Families
Most households
Gary Peer & Associates - Caulfield North348 Orrong Road
CAULFIELD NORTH, VIC 3161
CAULFIELD NORTH, VIC 3161