3/16 Carbine Way,
Mornington, VIC 3931
Warehouse, Factory & Industrial
Key property information
Floor area
Car spaces
Sold on
Map of 3/16 Carbine Way
Prime Opportunity for a Versatile Industrial Space
Strategically positioned within a boutique complex, 3/16 Carbine Way, Mornington offers a modern industrial facility combining functional design, strong presentation, and excellent long-term investment appeal.
Situated just off Racecourse Road, this near-new factory offers seamless access to Mornington’s commercial precinct, Peninsula Link, and key arterials, positioning it perfectly for a wide range of businesses and industries.
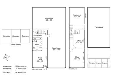
Areas - Refer to Floor & Site Plan
Key Features:
• Brand-new split systems to all office areas
• Comprehensive power, data, and fire services throughout
• Surveillance cameras
• Keypad access
• Three on-title car spaces
• Motorised roller door
• Single and three-phase power
• High-clearance warehouse (up to 7.1 metres)
• Dual driveway access for ease of movement
At just six years old and maintained to the highest standard, this exceptional property combines modern design with long-term value—an opportunity not to be missed in one of Mornington’s most tightly held commercial pockets.
For further details or to arrange a private inspection, please contact Carly Lindley or Fergus Nutt.
Situated just off Racecourse Road, this near-new factory offers seamless access to Mornington’s commercial precinct, Peninsula Link, and key arterials, positioning it perfectly for a wide range of businesses and industries.
Areas - Refer to Floor & Site Plan
Key Features:
• Brand-new split systems to all office areas
• Comprehensive power, data, and fire services throughout
• Surveillance cameras
• Keypad access
• Three on-title car spaces
• Motorised roller door
• Single and three-phase power
• High-clearance warehouse (up to 7.1 metres)
• Dual driveway access for ease of movement
At just six years old and maintained to the highest standard, this exceptional property combines modern design with long-term value—an opportunity not to be missed in one of Mornington’s most tightly held commercial pockets.
For further details or to arrange a private inspection, please contact Carly Lindley or Fergus Nutt.
Mornington, 3931 demographic data
The median household income for Mornington is $1,451, 24% lower than Greater Melbourne's household income of $1,901. Mornington has an older age profile compared to the rest of Greater Melbourne (median age 50 vs 37). Property ownership data shows 41% of property owners in Mornington have a mortgage.
25,759
Population
$1,451 per week
Median household income
50 years
Median age
Owners
Most residents
Families
Most households
3/16 Carbine Way
Mornington, VIC 3931
Warlimont & Nutt Real Estate - Mt Martha30 Lochiel Avenue
MOUNT MARTHA, VIC 3934
MOUNT MARTHA, VIC 3934
