Unit 2, 51 Jindalee Road,
Port Macquarie, NSW 2444
Warehouse, Factory & Industrial
Key property information
Land area
Floor area
Car spaces
Zoning
Leased on
Map of Unit 2, 51 Jindalee Road
High Exposure Business Premises
* High profile premises
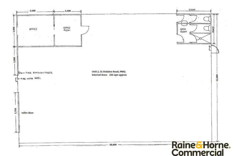
* Shopfront entry and high clearance roller door 3.5m wide and 4m high
* Tenancy Area of 216 sqm approx. (12m X 18m approx.)
* Includes office area of 18 sqm approx.
* Good internal clearance
* Includes male and female amenities with shower
* Onsite parking for 3 vehicles
* Current approval for indoor martial arts studio and so continued similar usage can apply, or alternatively revert to a warehouse and ancillary showroom/office usage
* Call Raine & Horne Commercial
Shop 3, 136 William Street, Port Macquarie
T : 02 6584 05...
* Shopfront entry and high clearance roller door 3.5m wide and 4m high
* Tenancy Area of 216 sqm approx. (12m X 18m approx.)
* Includes office area of 18 sqm approx.
* Good internal clearance
* Includes male and female amenities with shower
* Onsite parking for 3 vehicles
* Current approval for indoor martial arts studio and so continued similar usage can apply, or alternatively revert to a warehouse and ancillary showroom/office usage
* Call Raine & Horne Commercial
Shop 3, 136 William Street, Port Macquarie
T : 02 6584 05...
Additional information
External websites
Port Macquarie, 2444 demographic data
The median household income for Port Macquarie is $1,282, 11% lower than Regional New South Wales's household income of $1,434. Port Macquarie has an older age profile compared to the rest of Regional New South Wales (median age 48 vs 43). Property ownership data shows 37% of property owners in Port Macquarie have a mortgage.
47,693
Population
$1,282 per week
Median household income
48 years
Median age
Owners
Most residents
Families
Most households
Unit 2, 51 Jindalee Road
Port Macquarie, NSW 2444
Raine & Horne Commercial - Port MacquarieQuayside Building, 136 william Street
PORT MACQUARIE, NSW 2444
PORT MACQUARIE, NSW 2444
Similar properties
Other properties you might be interested in based on the location and property type you are looking at.


Contact Agent
1/223 Hastings River Drive,Port Macquarie, NSW 2444 109 m²Warehouse, Factory & Industrial


