
Suite 3, 166 Pacific Highway,
North Sydney, NSW 2060
Offices • Medical & Consulting
Key property information
Floor area
Car spaces
Parking info
Leased on
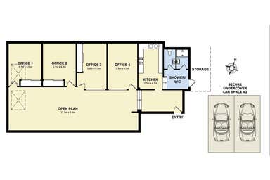
Map of Suite 3, 166 Pacific Highway
ATTRACTIVE RENT FOR UNIQUE GROUND FLOOR COMMERCIAL SUITE
Located in the heart of North Sydney and a short walk to bus, train, and ferry links, this spacious 190sqm* contemporary office suite will appeal to a wide range of astute businesses.
In addition to the open-plan main office there are four separate internal offices, a fully fitted kitchen and bathroom, two secure remote-controlled car spaces and plenty of storage: ideal for savvy investors looking to position their business for growth.
Located less than a 5-minute* walk from the new North Sydney Metro line, less than a 10-minute* walk from North Sydney train station and with popular restaurants & cafés at your doorstep, this property's location is ideal for both clients and commuting staff.
Property Highlights:
• Large 190 sqm* open plan main office suite measuring over 13 metres* in length
• Four separate internal offices all generously proportioned, 3 with inbuilt cupboards and wardrobes
• Fully fitted out kitchen including stove, oven, dishwasher, and plenty of storage
• Internal reception area to receive clients
• Large bathroom with shower and separate toilet
• Two secure side by side undercover car spaces - $250 per space per month plus GST
• Separate storage space with plumbing for laundry facilities
• Independently controlled ducted air-conditioning throughout
• Layout ideal for professional service, media/ podcast studio or as a home office configuration
*All figures are approximate.
For further details or to arrange an inspection please contact:
Max Stephens | 0429 500 1...
Max.stephens@raywhite.com
Logan Grisaffe | 0403 916 4...
Logan.grisaffe@raywhite.com
In addition to the open-plan main office there are four separate internal offices, a fully fitted kitchen and bathroom, two secure remote-controlled car spaces and plenty of storage: ideal for savvy investors looking to position their business for growth.
Located less than a 5-minute* walk from the new North Sydney Metro line, less than a 10-minute* walk from North Sydney train station and with popular restaurants & cafés at your doorstep, this property's location is ideal for both clients and commuting staff.
Property Highlights:
• Large 190 sqm* open plan main office suite measuring over 13 metres* in length
• Four separate internal offices all generously proportioned, 3 with inbuilt cupboards and wardrobes
• Fully fitted out kitchen including stove, oven, dishwasher, and plenty of storage
• Internal reception area to receive clients
• Large bathroom with shower and separate toilet
• Two secure side by side undercover car spaces - $250 per space per month plus GST
• Separate storage space with plumbing for laundry facilities
• Independently controlled ducted air-conditioning throughout
• Layout ideal for professional service, media/ podcast studio or as a home office configuration
*All figures are approximate.
For further details or to arrange an inspection please contact:
Max Stephens | 0429 500 1...
Max.stephens@raywhite.com
Logan Grisaffe | 0403 916 4...
Logan.grisaffe@raywhite.com
Additional information
External websites
North Sydney, 2060 demographic data
The median household income for North Sydney is $2,405, 16% higher than Greater Sydney's household income of $2,077. North Sydney has a younger age profile compared to the rest of Greater Sydney (median age 36 vs 37). Property ownership data shows 45% of property owners in North Sydney have a mortgage.
8,964
Population
$2,405 per week
Median household income
36 years
Median age
Renters
Most residents
Families
Most households
RWC - Lower North Shore
102 Glover StreetMOSMAN, NSW 2088

Suite 3, 166 Pacific Highway
North Sydney, NSW 2060
RWC - Lower North Shore102 Glover Street
MOSMAN, NSW 2088
MOSMAN, NSW 2088
More properties from RWC - Lower North Shore
Other properties you might be interested in based on the location and property type you are looking at.

Contact Agent
Level 1 Office Suite, 13-15 Ridge Street,North Sydney, NSW 2060 57 m²Offices • Medical & Consulting • Shops & Retail

