
7/3 Torca Terrace,
Mornington, VIC 3931
Offices
Key property information
Floor area
Car spaces
Leased on
Map of 7/3 Torca Terrace
Leased
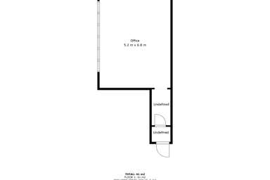
Set This 41m² office suite offers a stylish and functional workspace ideal for a small team or business looking to establish a strong presence in Mornington.
Positioned on the first floor with a large open-plan office area (approx. 5.2m x 6.8m) with quality furnishings
- Fully carpeted interior with air-conditioning
- Access to shared kitchen and bathroom amenities
- Secure entry into a well-maintained professional complex with allocated parking
- Excellent signage opportunities and prominent street presence
- With an unbeatable location moments from Main Street, cafés, shops, and public transport, this ready-to-go office provides the perfect blend of professionalism, convenience, and comfort.
For more information or to arrange an inspection, contact us today.
Important Notice:
- All information and measurements provided are approximate. Please refer to the Contract of Sale and/or Lease documentation for precise details.
Positioned on the first floor with a large open-plan office area (approx. 5.2m x 6.8m) with quality furnishings
- Fully carpeted interior with air-conditioning
- Access to shared kitchen and bathroom amenities
- Secure entry into a well-maintained professional complex with allocated parking
- Excellent signage opportunities and prominent street presence
- With an unbeatable location moments from Main Street, cafés, shops, and public transport, this ready-to-go office provides the perfect blend of professionalism, convenience, and comfort.
For more information or to arrange an inspection, contact us today.
Important Notice:
- All information and measurements provided are approximate. Please refer to the Contract of Sale and/or Lease documentation for precise details.
Mornington, 3931 demographic data
The median household income for Mornington is $1,451, 24% lower than Greater Melbourne's household income of $1,901. Mornington has an older age profile compared to the rest of Greater Melbourne (median age 50 vs 37). Property ownership data shows 41% of property owners in Mornington have a mortgage.
25,759
Population
$1,451 per week
Median household income
50 years
Median age
Owners
Most residents
Families
Most households
OBrien Real Estate - Mornington
2/188 Main StreetMORNINGTON, VIC 3931
04044828...

7/3 Torca Terrace
Mornington, VIC 3931
OBrien Real Estate - Mornington2/188 Main Street
MORNINGTON, VIC 3931
MORNINGTON, VIC 3931
More properties from OBrien Real Estate - Mornington
Other properties you might be interested in based on the location and property type you are looking at.


