
55 Down Street,
Collingwood, VIC 3066
Warehouse, Factory & Industrial • Showrooms & Large Format Retail • Offices
Key property information
Land area
Floor area
Car spaces
Parking info
Zoning
Leased on
Map of 55 Down Street
SUPERB COLLINGWOOD WAREHOUSE
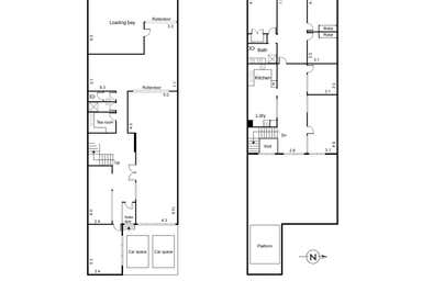
Boasting a secure and substantial building over two magnificent levels, this extensively refurbished Collingwood warehouse/office/showroom complex provides a blank canvas of exceptional quality for the next chapter of growth for your business. With the benefit of two (2) street frontages, on-site parking at the front and rear of the building (including roller-door access at the rear) this freestanding, inner-city gem of a building on a significant and strategically located landholding will not last long!
Features include:
> Two (2) street frontages
> 10m-frontage at both front and rear
> Painted concrete floor (ground floor)
> Warehousing & showroom (ground floor)
> Separate first floor offices and modern kitchen + bathroom
> Air-conditioning & heating (reverse-cycle)
> Ample amenities on both levels
> Vacant Possession
> BUILDING AREA: 450m2*
> LAND: 307m2*
An increasingly rare offering for the astute owner-occupier or investor in one of Melbourne's most highly prized and tightly held inner-urban precincts.
This property is for LEASE and/or PRIVATE SALE
For further information on this exciting and increasing rare opportunity, please contact the exclusive selling agents MIGLIC DEAN.
Features include:
> Two (2) street frontages
> 10m-frontage at both front and rear
> Painted concrete floor (ground floor)
> Warehousing & showroom (ground floor)
> Separate first floor offices and modern kitchen + bathroom
> Air-conditioning & heating (reverse-cycle)
> Ample amenities on both levels
> Vacant Possession
> BUILDING AREA: 450m2*
> LAND: 307m2*
An increasingly rare offering for the astute owner-occupier or investor in one of Melbourne's most highly prized and tightly held inner-urban precincts.
This property is for LEASE and/or PRIVATE SALE
For further information on this exciting and increasing rare opportunity, please contact the exclusive selling agents MIGLIC DEAN.
Collingwood, 3066 demographic data
The median household income for Collingwood is $2,130, 12% higher than Greater Melbourne's household income of $1,901. Collingwood has a younger age profile compared to the rest of Greater Melbourne (median age 33 vs 37). Property ownership data shows 65% of property owners in Collingwood have a mortgage.
9,179
Population
$2,130 per week
Median household income
33 years
Median age
Renters
Most residents
Families
Most households
MIGLIC DEAN - FITZROY
11 Smith StreetFITZROY, VIC 3065

55 Down Street
Collingwood, VIC 3066
MIGLIC DEAN - FITZROY11 Smith Street
FITZROY, VIC 3065
FITZROY, VIC 3065
More properties from MIGLIC DEAN - FITZROY
Other properties you might be interested in based on the location and property type you are looking at.

Contact Agent
22-24 Northumberland Street,Collingwood, VIC 3066 1672 m²Warehouse, Factory & Industrial • Showrooms & Large Format Retail


Contact Agent
10/38 Down Street,Collingwood, VIC 3066 160 m²Warehouse, Factory & Industrial • Offices • Showrooms & Large Format Retail