
2/11 Nelson Road,
Cardiff, NSW 2285
Warehouse, Factory & Industrial
Key property information
Land area
Floor area
Car spaces
Zoning
Leased on
Map of 2/11 Nelson Road
10 tonne Over Head Crane
Located in the heart of Cardiff's Industrial Estate, this
workshop is part of a (2) building complex with its own street frontage.
* (10) tonne Demag overhead crane (5.7) mts under hook
* Height to eaves (8.5) mts
* (24) High bay lights
* Heavy duty power with (28 x 3) Phase power outlets
* (15) Car spaces at the front of the building
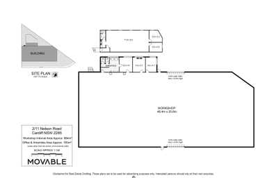
* Workshop (48.45 x 20.75) = Approx Area: 988m2
* Workshop office and amenities = Approx Area: 70m2
* Main office (ducted a/c - lino floors) = Approx Area:
100m2
* Small yard space at the rear = Approx Area: 243m2
Currently vacant and will be a sublet arrangement so attractive terms can be negotiated for the right tenant.
workshop is part of a (2) building complex with its own street frontage.
* (10) tonne Demag overhead crane (5.7) mts under hook
* Height to eaves (8.5) mts
* (24) High bay lights
* Heavy duty power with (28 x 3) Phase power outlets
* (15) Car spaces at the front of the building
* Workshop (48.45 x 20.75) = Approx Area: 988m2
* Workshop office and amenities = Approx Area: 70m2
* Main office (ducted a/c - lino floors) = Approx Area:
100m2
* Small yard space at the rear = Approx Area: 243m2
Currently vacant and will be a sublet arrangement so attractive terms can be negotiated for the right tenant.
Explore property virtually
Video
Additional information
External websites
Cardiff, 2285 demographic data
The median household income for Cardiff is $1,512, 5% higher than Regional New South Wales's household income of $1,434. Cardiff has a younger age profile compared to the rest of Regional New South Wales (median age 38 vs 43). Property ownership data shows 53% of property owners in Cardiff have a mortgage.
6,318
Population
$1,512 per week
Median household income
38 years
Median age
Owners
Most residents
Families
Most households
MOVABLE Commercial
92-94 Darby StreetCOOKS HILL, NSW 2300

2/11 Nelson Road
Cardiff, NSW 2285
MOVABLE Commercial92-94 Darby Street
COOKS HILL, NSW 2300
COOKS HILL, NSW 2300
More properties from MOVABLE Commercial
Other properties you might be interested in based on the location and property type you are looking at.


