
102 Auburn Street,
Wollongong, NSW 2500
Offices • Medical & Consulting • Other
Key property information
Floor area
Leased on
Colliers Wollongong Pty Limited -
Level 2, 63 Market StreetWOLLONGONG, NSW 2500

102 Auburn Street
Wollongong, NSW 2500
Map of 102 Auburn Street
High Quality Office Space on CBD Fringe
Offering 535m2* of high quality office accommodation across two functional levels, this commercial premises presents an exceptional opportunity for businesses seeking space, accessibility, and convenience. The layout features a welcoming reception area, multiple partitioned office suites, a spacious boardroom, and fully equipped kitchen and bathroom facilities, including accessible amenities and an internal lift for enhanced mobility.
Fully air-conditioned and carpeted throughout, the property ensures comfort and professionalism in every workspace. Secure onsite parking is provided behind gated fencing, complemented by ample non-metered street parking and proximity to public transportation options, making it easily accessible for staff and clients alike.
This is a rare opportunity to secure a turnkey office space in a well-connected location, ideal for a wide range of professional, corporate, or medical uses.
Property features
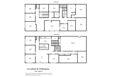
• Floor area: 535m2* of high quality office space across two levels
• Welcoming reception area, multiple private offices, and spacious boardroom
• Full kitchen facilities and modern amenities, including internal lift and accessible bathrooms
• Fully air-conditioned and carpeted throughout for comfort and professionalism
• Secure onsite parking within a gated fenced premises
• Additional ample non-metered street parking available nearby
• Conveniently located close to public transport routes and essential services
*Approx.
Fully air-conditioned and carpeted throughout, the property ensures comfort and professionalism in every workspace. Secure onsite parking is provided behind gated fencing, complemented by ample non-metered street parking and proximity to public transportation options, making it easily accessible for staff and clients alike.
This is a rare opportunity to secure a turnkey office space in a well-connected location, ideal for a wide range of professional, corporate, or medical uses.
Property features
• Floor area: 535m2* of high quality office space across two levels
• Welcoming reception area, multiple private offices, and spacious boardroom
• Full kitchen facilities and modern amenities, including internal lift and accessible bathrooms
• Fully air-conditioned and carpeted throughout for comfort and professionalism
• Secure onsite parking within a gated fenced premises
• Additional ample non-metered street parking available nearby
• Conveniently located close to public transport routes and essential services
*Approx.
Wollongong, 2500 demographic data
The median household income for Wollongong is $1,549, 8% higher than Regional New South Wales's household income of $1,434. Wollongong has a younger age profile compared to the rest of Regional New South Wales (median age 35 vs 43). Property ownership data shows 40% of property owners in Wollongong have a mortgage.
20,446
Population
$1,549 per week
Median household income
35 years
Median age
Renters
Most residents
Families
Most households
Colliers Wollongong Pty Limited - Level 2, 63 Market Street
WOLLONGONG, NSW 2500
WOLLONGONG, NSW 2500
More properties from Colliers Wollongong Pty Limited -
Other properties you might be interested in based on the location and property type you are looking at.


Contact Agent
Level 2, Suite 4, Enterprise 1 Innovation Campus,North Wollongong, NSW 2500 660 m²Offices

