1 Gregory Hills Drive,
Gregory Hills, NSW 2557
Medical & Consulting • Offices • Shops & Retail
Key property information
Floor area
Car spaces
Parking info
Property extent
Lease expiry
Leased on
Map of 1 Gregory Hills Drive
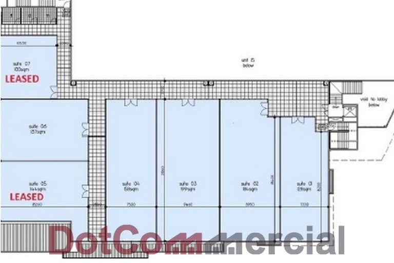
Office Suites Available In Office Works Complex
- Exposure onto GHD
- Lift Access
Brand new Offices available in Gregory Hills with over 300 parking spots and in the same complex as Office Works, several eateries and exposure onto Gregory Hills Drive which is now open. Lift access direct from under ground parking to top floor.
Only a few suites left. Please contact Rebecca Gourlie 0403 120 6... or Cathy Lucre 0407 419 615.
Only a few suites left. Please contact Rebecca Gourlie 0403 120 6... or Cathy Lucre 0407 419 615.
Gregory Hills, 2557 demographic data
The median household income for Gregory Hills is $2,406, 16% higher than Greater Sydney's household income of $2,077. Gregory Hills has a younger age profile compared to the rest of Greater Sydney (median age 30 vs 37). Property ownership data shows 87% of property owners in Gregory Hills have a mortgage.
9,142
Population
$2,406 per week
Median household income
30 years
Median age
Owners
Most residents
Families
Most households
04031206...
1 Gregory Hills Drive
Gregory Hills, NSW 2557
DotCommercial - CamdenPO Box 484
CAMDEN, NSW 2570
CAMDEN, NSW 2570
Similar properties
Other properties you might be interested in based on the location and property type you are looking at.


Contact Agent
15/13 Digitaria Drive,Gregory Hills, NSW 2557 90 m²Medical & Consulting • Offices • Shops & Retail


Contact Agent
Suite 5, 7 Gregory Hills Drive,Gregory Hills, NSW 2557 103 m²Medical & Consulting • Offices
