Added 4 days ago
U227, 189 Adelaide Terrace,
East Perth, WA 6004
Offices β’ Shops & Retail β’ Medical & Consulting
Added 4 days ago
Detailed listing
Key property information
Land area
Floor area
Car spaces
Property extent
Zoning
Municipality
Tenure type
Outgoings
Private inspections
to arrange a private inspection.
Map of U227, 189 Adelaide Terrace
Train stations within 5 km of U227, 189 Adelaide Terrace, East Perth, WA 6004 Distance McIver Station 945 m Claisebrook Station 1.2 km Perth Station 1.3 km Elizabeth Quay Railway Station 1.4 km The Prospector (Transwa) 1.8 km POWERED BY HERE Β©Tram stops within 5 km of U227, 189 Adelaide Terrace, East Perth, WA 6004 Distance Perth Underground 1.5 km Leederville Station 3.5 km POWERED BY HERE Β©Bus stops within 5 km of U227, 189 Adelaide Terrace, East Perth, WA 6004 Distance Adelaide Tce After Bennett St 57 m Terrace Rd After Burt Wy 86 m Ambassador Hotel Adelaide Terrace 113 m Adelaide Tce Before Bennett St 121 m Hay St Carlton Red CAT 5 173 m POWERED BY HERE Β©
POWERED BY HERE Β©
Prime Commercial Shop / Office fronting busy Adelaide Terrace - well below replacement value!
- Ground floor street facing location
- Professionally partitioned
- Suit an array of business usage
Prime location East Perth Commercial Shop / Office For Sale / For Lease π’πβοΈπ±π₯‘ππ₯π₯π₯ͺπβοΈπ§π©Ίπ¦·π. Will be #SOLD #LEASED, well below purchase cost and all reasonable #offers presented.
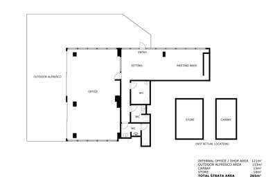
Located on ground floor of Finbar's Concerto building facing one of Perth CBD's main road on Adelaide Terrace, this commercial property provides your business great branding exposure to passing traffic. Professionally partitioned with 3 separate WCs π¨π©βΏοΈ, ducted reverse cycle βοΈ air-conditioning, secured carbay 13m2 π, internal shop / office area 121m2, alfresco area for 113m2, storeroom 18m2 (total area 265m2) - this commercial property is priced to be SOLD / LEASED.
Zoned under City of Perth as Office / Residential- Precinct 13 Adelaide, it is currently approved as an office. The property is also suitable for the following uses (subject to Council Approval):
β οΈ Business Services (P)
β οΈ Civic Use (P)
β οΈ Dining (P)
β οΈ Healthcare 1 (P)
β οΈ Healthcare 2 (C)
β οΈ Community & Cultural (C)
β οΈ Education 1 & 2 (C)
β οΈ Entertainment (C)
β οΈ Mixed Commercial (C)
β οΈ Recreation & Leisure (C)
β οΈ Retail General & Local (C)
Ideal as a professional office, cafΓ©, medical suite, dental clinic, small bar, restaurant etc - subject to council approval.
Secure this amazingly value commercial property for your business and start 2026 with a bang π₯, it will be SOLD / LEASED!
π² Kong Wai Wong 0421 883 3... / Darren Clarke 0422 899 199
π§ kongwai@jardimproperty.com.au/ darren@jardimproperty.com.au
* Note: The property's images herewith are professionally staged virtually to provide the potential concept of an office or cafΓ©.
DISCLAIMER: Whilst every care has been taken with the preparation of the particulars contained in the information supplied, believed to be correct, neither the agent nor the client nor servants of both, guarantee their accuracy. Interested persons are advised to make their own enquiries and satisfy themselves in all respects. The particulars contained are not intended to form part of any contract.
Located on ground floor of Finbar's Concerto building facing one of Perth CBD's main road on Adelaide Terrace, this commercial property provides your business great branding exposure to passing traffic. Professionally partitioned with 3 separate WCs π¨π©βΏοΈ, ducted reverse cycle βοΈ air-conditioning, secured carbay 13m2 π, internal shop / office area 121m2, alfresco area for 113m2, storeroom 18m2 (total area 265m2) - this commercial property is priced to be SOLD / LEASED.
Zoned under City of Perth as Office / Residential- Precinct 13 Adelaide, it is currently approved as an office. The property is also suitable for the following uses (subject to Council Approval):
β οΈ Business Services (P)
β οΈ Civic Use (P)
β οΈ Dining (P)
β οΈ Healthcare 1 (P)
β οΈ Healthcare 2 (C)
β οΈ Community & Cultural (C)
β οΈ Education 1 & 2 (C)
β οΈ Entertainment (C)
β οΈ Mixed Commercial (C)
β οΈ Recreation & Leisure (C)
β οΈ Retail General & Local (C)
Ideal as a professional office, cafΓ©, medical suite, dental clinic, small bar, restaurant etc - subject to council approval.
Secure this amazingly value commercial property for your business and start 2026 with a bang π₯, it will be SOLD / LEASED!
π² Kong Wai Wong 0421 883 3... / Darren Clarke 0422 899 199
π§ kongwai@jardimproperty.com.au/ darren@jardimproperty.com.au
* Note: The property's images herewith are professionally staged virtually to provide the potential concept of an office or cafΓ©.
DISCLAIMER: Whilst every care has been taken with the preparation of the particulars contained in the information supplied, believed to be correct, neither the agent nor the client nor servants of both, guarantee their accuracy. Interested persons are advised to make their own enquiries and satisfy themselves in all respects. The particulars contained are not intended to form part of any contract.
Explore property virtually
Virtual tours
If you'd like to inspect this property in person, please to arrange a private inspection.
East Perth, 6004 demographic data
The median household income for East Perth is $2,005, 8% higher than Greater Perth's household income of $1,865. East Perth has a younger age profile compared to the rest of Greater Perth (median age 35 vs 37). Property ownership data shows 55% of property owners in East Perth have a mortgage.
11,681
Population
$2,005 per week
Median household income
35 years
Median age
Renters
Most residents
Families
Most households
04218833...
U227, 189 Adelaide Terrace
East Perth, WA 6004
Detailed listing
Jardim Property Group - SUCCESS88 Marine Terrace
FREMANTLE, WA 6160
FREMANTLE, WA 6160
More properties from Jardim Property Group - SUCCESS
Other properties you might be interested in based on the location and property type you are looking at.

Leased investment For Sale by Offers
5/28 Hood Street,Subiaco, WA 6008 101 mΒ²Offices β’ Medical & Consulting β’ Shops & Retail
