
Added 4 days ago
36/8 Lewalan Street,
Grovedale, VIC 3216
Warehouse, Factory & Industrial
Added 4 days ago
Key property information
Floor area
Tenure type
Private inspections
to arrange a private inspection.
Map of 36/8 Lewalan Street
Train stations within 5 km of 36/8 Lewalan Street, Grovedale, VIC 3216 Distance Marshall 763 m Waurn Ponds Station 4.1 km South Geelong Railway Station 4.5 km POWERED BY HERE ©Bus stops within 5 km of 36/8 Lewalan Street, Grovedale, VIC 3216 Distance Essington St/Bailey St (Grovedale) 162 m Torquay Rd/Marshalltown Rd (Grovedale) 279 m 111 Marshalltown Rd 296 m Hewitt Dr/Marshalltown Rd (Grovedale) 298 m Church St/Torquay Rd (Grovedale) 328 m POWERED BY HERE ©
POWERED BY HERE ©
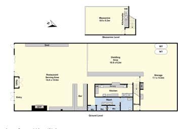
Quality Factory Warehouse with High Spec Hospitality Fit-Out
- Premium building of 464sqm* available immediately
- Includes first floor mezzanine ideal for office space
- General liquor licence attached to the property
- Operating as gin/whiskey distillery (licence & equipment to manufacture alcohol available separately)
- Great location to create destination food & beverage / cafe operation / coffee roastery (stca)
- AAA grade fit out including bar area, kitchen & amenities
- Opportunity to purchase as is & create your own brand
- Highly populated & well-known industrial precinct with Industrial 1 zoning
(*denotes approx.)
- Includes first floor mezzanine ideal for office space
- General liquor licence attached to the property
- Operating as gin/whiskey distillery (licence & equipment to manufacture alcohol available separately)
- Great location to create destination food & beverage / cafe operation / coffee roastery (stca)
- AAA grade fit out including bar area, kitchen & amenities
- Opportunity to purchase as is & create your own brand
- Highly populated & well-known industrial precinct with Industrial 1 zoning
(*denotes approx.)
Additional information
External websites
Grovedale, 3216 demographic data
The median household income for Grovedale is $1,477, 7% higher than Regional Victoria's household income of $1,386. Grovedale has a younger age profile compared to the rest of Regional Victoria (median age 41 vs 43). Property ownership data shows 47% of property owners in Grovedale have a mortgage.
14,869
Population
$1,477 per week
Median household income
41 years
Median age
Owners
Most residents
Families
Most households
Maxwell Collins Real Estate - Geelong
55 Myers StreetGEELONG, VIC 3220

36/8 Lewalan Street
Grovedale, VIC 3216
Maxwell Collins Real Estate - Geelong55 Myers Street
GEELONG, VIC 3220
GEELONG, VIC 3220