
20 Wodonga Street,
Beverley, SA 5009
Warehouse, Factory & Industrial
Key property information
Land area
Floor area
Private inspections
to arrange a private inspection.
McGees Property - Adelaide (RLA 1722)
Level 10/60 Waymouth StreetADELAIDE, SA 5000

20 Wodonga Street
Beverley, SA 5009
Map of 20 Wodonga Street
Train stations within 5 km of 20 Wodonga Street, Beverley, SA 5009 Distance Kilkenny Station 983 m Woodville Park Station 1.2 km West Croydon Station 1.4 km Woodville Station 1.7 km Croydon Station 2.1 km POWERED BY HERE ©Tram stops within 5 km of 20 Wodonga Street, Beverley, SA 5009 Distance Stop 9 Port RdNorth Side 2.3 km Tram Entertainment Centre 3.4 km Stop 8 Churchill Rd-West Side 4 km Tram Bonython Park 4 km Tram Thebarton 4.3 km POWERED BY HERE ©Bus stops within 5 km of 20 Wodonga Street, Beverley, SA 5009 Distance 17 Port Rd - South West Side 566 m 18 Port Rd - South West Side 594 m 16 Port Rd - South West Side 700 m 16 Kilkenny Rd - East Side 769 m 22 Crittenden Rd - North East Side 800 m POWERED BY HERE ©
POWERED BY HERE ©
Hi-Tech Office Warehouse | Available Now
McGees Property is pleased to present to the market For Lease 20 Wodonga Street, Beverley, providing the opportunity to occupy a modern, standalone office warehouse positioned in one of Adelaide's most tightly held inner western precincts. Perfectly suited to a range of contemporary users including professional services, storage and distribution, research and training and service trades (STCC).
Key property highlights include:
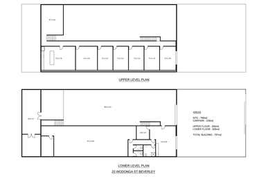
• High quality improvements totalling 787 sqm*, two-storey office / premium amenities & high-clearance warehouse
• Secure site area totalling 766 sqm* with on-site parking & laydown
• 3 Phase power supply, digital security system, high-speed internet connectivity & automated front gate
• 30 kW solar system
• Insulated warehouse with extraction system
• Split-system air conditioning throughout all offices
• Zoned Strategic Employment – City of Charles Sturt
• Available now
For more information or to arrange an inspection of 20 Wodonga Street, Beverley please contact Marco Onorato or Ross Christodoulou of McGees Property (RLA 1722).
(* approx.)
Key property highlights include:
• High quality improvements totalling 787 sqm*, two-storey office / premium amenities & high-clearance warehouse
• Secure site area totalling 766 sqm* with on-site parking & laydown
• 3 Phase power supply, digital security system, high-speed internet connectivity & automated front gate
• 30 kW solar system
• Insulated warehouse with extraction system
• Split-system air conditioning throughout all offices
• Zoned Strategic Employment – City of Charles Sturt
• Available now
For more information or to arrange an inspection of 20 Wodonga Street, Beverley please contact Marco Onorato or Ross Christodoulou of McGees Property (RLA 1722).
(* approx.)
Beverley, 5009 demographic data
The median household income for Beverley is $1,598, 3% higher than Greater Adelaide's household income of $1,548. Beverley has a younger age profile compared to the rest of Greater Adelaide (median age 36 vs 39). Property ownership data shows 61% of property owners in Beverley have a mortgage.
1,578
Population
$1,598 per week
Median household income
36 years
Median age
Owners
Most residents
Families
Most households
McGees Property - Adelaide (RLA 1722)Level 10/60 Waymouth Street
ADELAIDE, SA 5000
ADELAIDE, SA 5000
More properties from McGees Property - Adelaide (RLA 1722)
Other properties you might be interested in based on the location and property type you are looking at.

